Planning Permission for new Georgian style villa in Oxshott
Planning permission was granted by Elmbridge Borough Council for this new triple gabled Georgian style villa for a private client in Oxshott, Surrey.
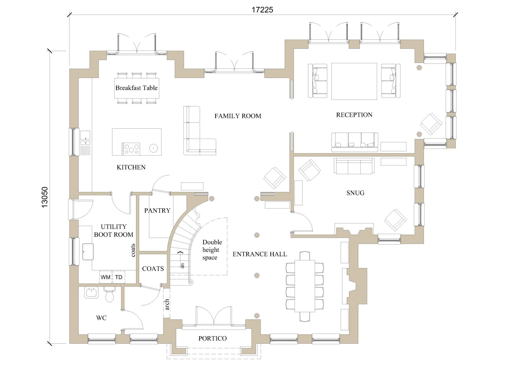
We were appointed by the client to redesign a previous house on the site that did not meet their size or architectural requirements. The overall site was part of a larger property that was to be demolished to make way for this new home on half the site with the other half sold off to developers to pay for the construction of their own home.
The heavy stucco porch with rusticated shallow arch contrasts with the softer stock brickwork of the main elevations complete with brick pilasters with stone capitals and stone surrounds to feature windows.

