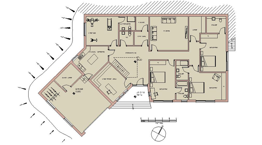
Contemporary 5,500sqft Detached Home on woodland sloping site in Farnham, Surrey

A naturally sloping site nestled within a clearing and surrounded by woodland covered under a blanket Tree Preservation Order and within Farnham’s Area of Special Environmental Quality presented a number of challenges which helped shape the final design of the project.















Completed in early Summer 2018, the scheme is the redesign of an earlier approved more modest dwelling that we achieved planning for on behalf of a private client following an original refusal of planning by previous owners of the site which ultimately lead to the imposition of the Tree Preservation Order before our clients purchased the site.
The site itself is set within the wooded gardens to the rear of the clients’ former home and is accessed via a new driveway from the north which winds its way through the trees and sweeps round to approach the house from the imposing southern elevation. The design presents a low, single storey elevation to the north with the lower floor cut in to the slope of the site while the mono-pitch roof allows the southern elevation to maximise on the views and sunlight filtered through the trees.
Download the project information sheet and photographs here.
Photographs (c) Matt Chisnall Photography

