Transformation of Chalet House, Reigate
The project involves the complete redesign of the exterior of the house, replacing a disastrous mix of plastic cladding, stone cladding and facing brick with a modern, clean aesthetic of white render over a new layer of external insulation. The existing heavy concrete roof tiles are replaced with natural slate, the white plastic windows replaced with new double glazed powder coated aluminium windows in a dark slate grey colour to match the roof and rainwater goods.
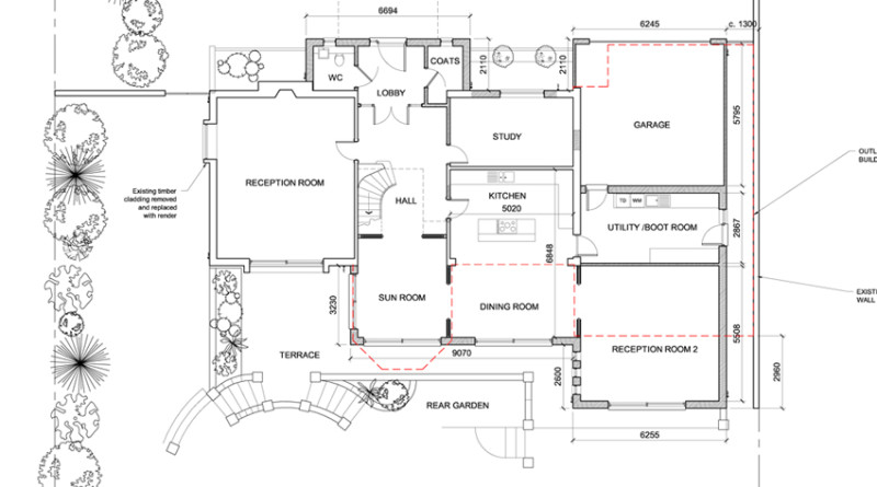
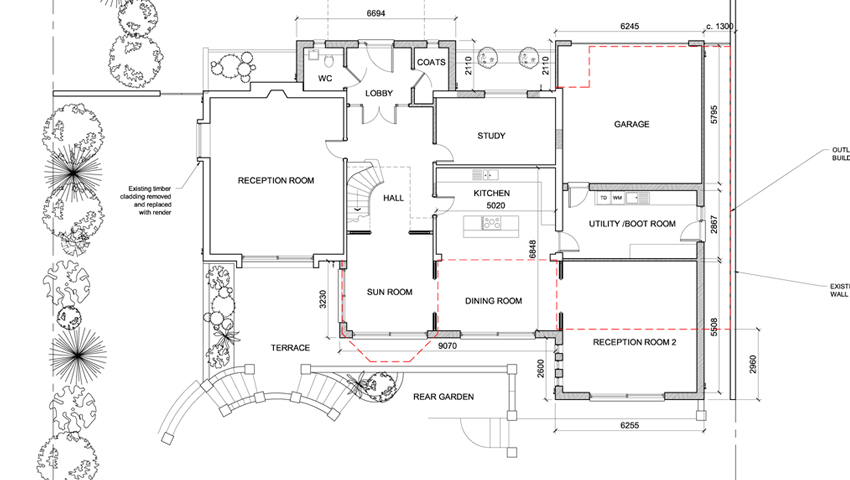
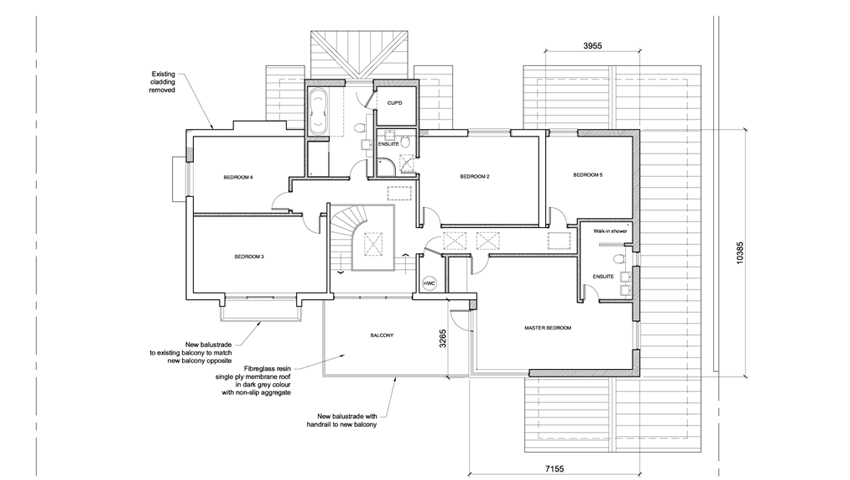
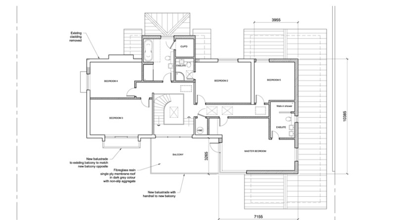
The existing conservatory is replaced with a new sun-room below a new large balcony with glazed balustrading accessed directly off the new master bedroom suite with clear views over the adjacent Wray Common Conservation Area.
The existing single storey garage to the far side is replaced with a new two storey extension, extending both to the front and rear, incorporating the new master bedroom suite, guest suite, new utility room improved garaging, and the new music room extending into the south facing gardens.
The deep overhanging eaves to the roof provide passive solar shading from the summer sun to the first floor rooms. A new front projecting porch and gable provides the much needed balance to the front elevation as well as relieving the cramped existing bathroom accommodation to the first floor.






