Semi-detached Flint and Brick Cottages in Guildford, Surrey
We were asked by a regular client, a local developer who we’ve worked on several projects with, to prepare designs for a pair of semi-detached houses in a small back street in Guildford, Surrey.
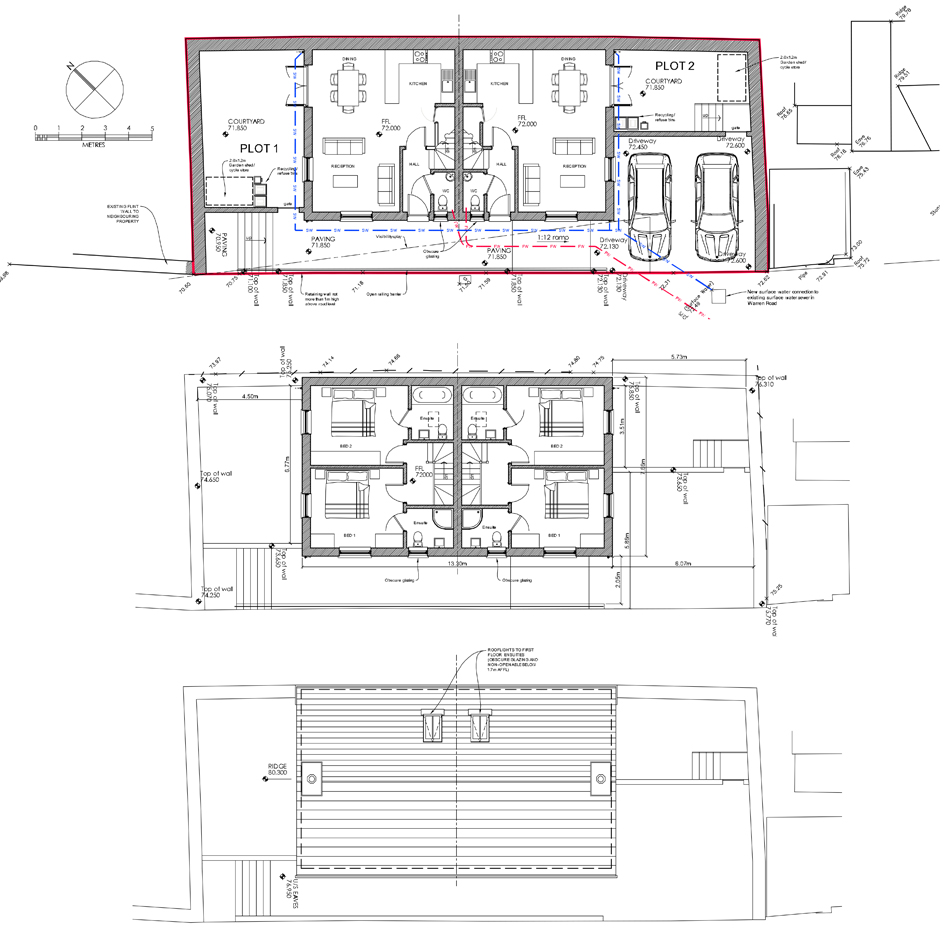
The site was to be ‘created’ by removing a section of a locally listed flint and brick wall and excavating the 4m height of earth behind this wall to form a site level with the road. A new brick faced retaining wall to the rear of the site (and forming the rear walls of the houses) would ensure that the earth behind was kept in place.
Clearly, this site would present many design challenges.
The solution was a pair of small semi-detached cottages designed to ensure daylight to the principal rooms could be achieved from the front and side elevations as there was no opportunity for natural light from the back. Two double bedrooms, each with ensuite bathrooms and an open plan ground floor make these properties perfect for shared young professionals looking to get on to the housing ladder.
A small courtyard garden provides amenity space for each plot and parking for one car was provided with visibility down the one-way road achieved by setting the front elevation back from the road which also served as access from the parking space to the front of the properties.
The buildings were designed as traditional brick and flint buildings with clay tile gabled roofs and chimneys to reflect the materials of the existing wall and a number of existing buildings in the nearby Conservation Area.
For more projects for developers please follow this link.






