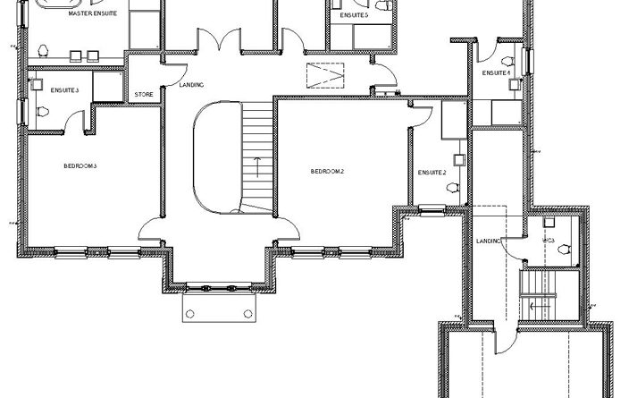
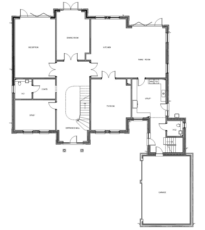
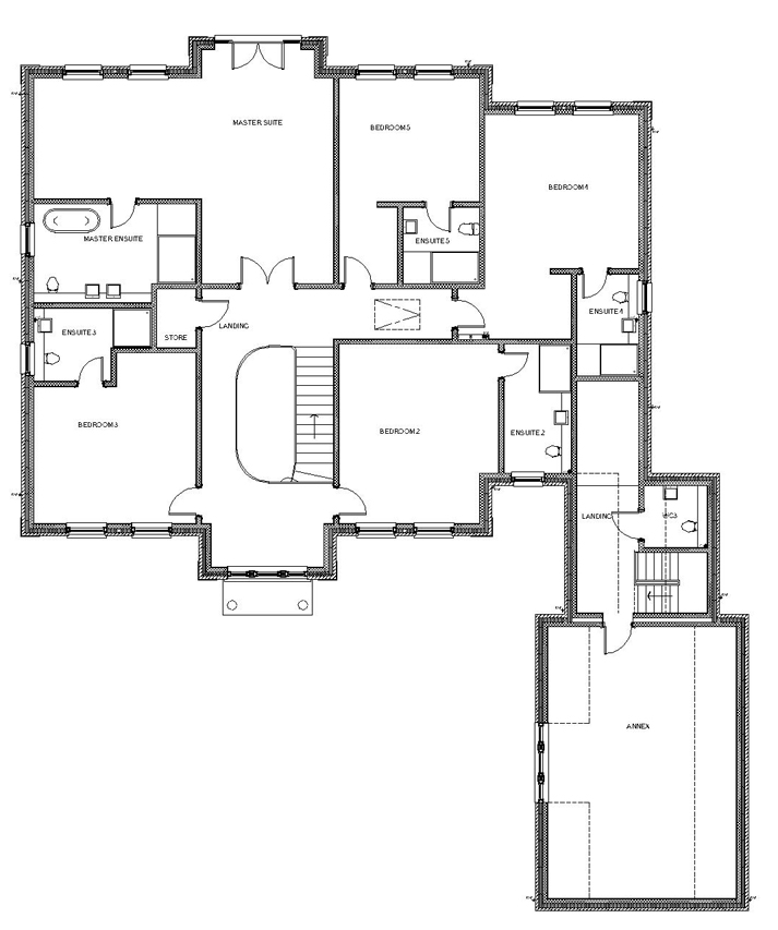
New Georgian home in Cobham, Surrey for Carrington Fox Developments
Work began on site in September 2017 on this new large Georgian style home in the highly desirable Cobham, Surrey. We were appointed to review and revise an earlier design that had been granted planning permission to improve the layout and external appearance before submitting the revisions to Elmbridge Borough Council and then preparing the construction drawings, specification and schedules for Carrington Fox Developments Ltd.
For more projects for developers please follow this link.









