Four Detached Dwellings for Developer Tkei Homes in Cuckfield, West Sussex
Four detached dwellings on a backland site for Surrey Developer Tkei Homes Ltd in the picturesque village of Cuckfield, West Sussex.
Works started on site summer 2016 and were completed in late spring 2018.
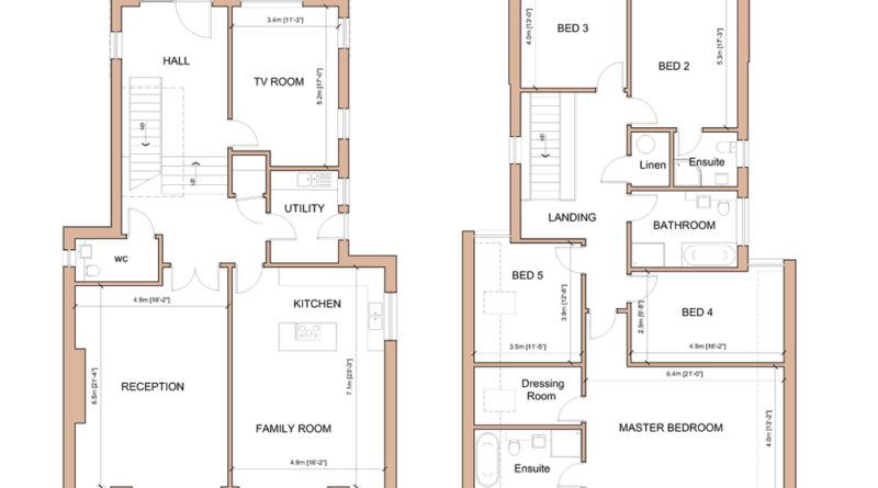
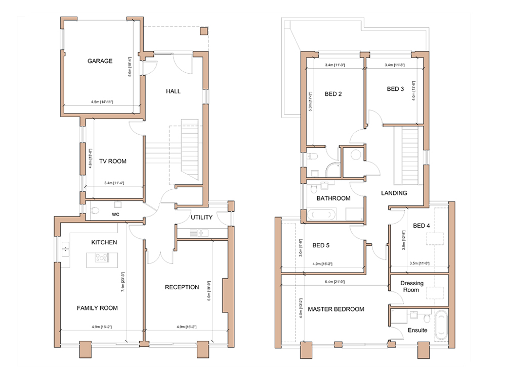
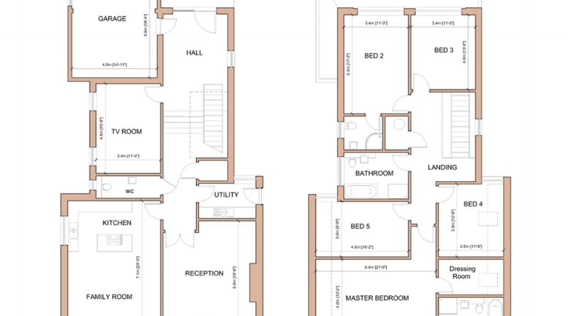
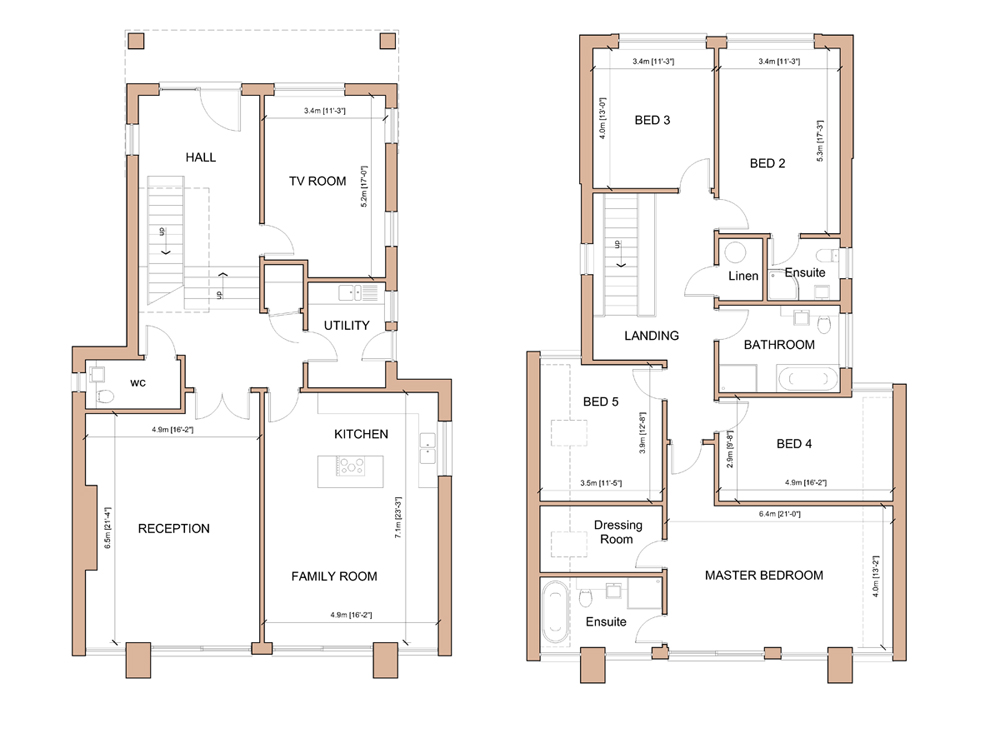
Overlooking open rolling countryside to the south, these five bedroom 3,000sqft+ homes have been designed over two floors with a stepped ground floor taking advantage of the natural topography of the site. This provides extra high ceilings to the main reception and living spaces at the rear of the house where the large glazed southern elevation allows light to flood into the interior.
Externally, the contemporary design takes its cue from simple traditional gabled barn structures and the mix of timber cladding and render compliment the slate roofing. Cantilevered first floors to the front elevation are supported on piers with ribbon windows to the bedrooms above.











