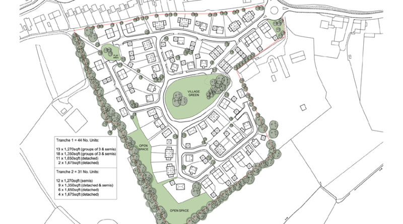
Large Housing Development, East Sussex
Designed around the concept of the traditional Village Green the layout has been driven by the needs of the pedestrian rather than by the car.
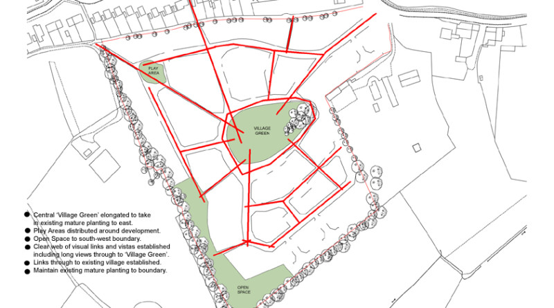
A new ‘village green’ is established in the centre of the development giving equal access to all plots. Radiating from this are a series of views and vistas along which pedestrian routes are set out.
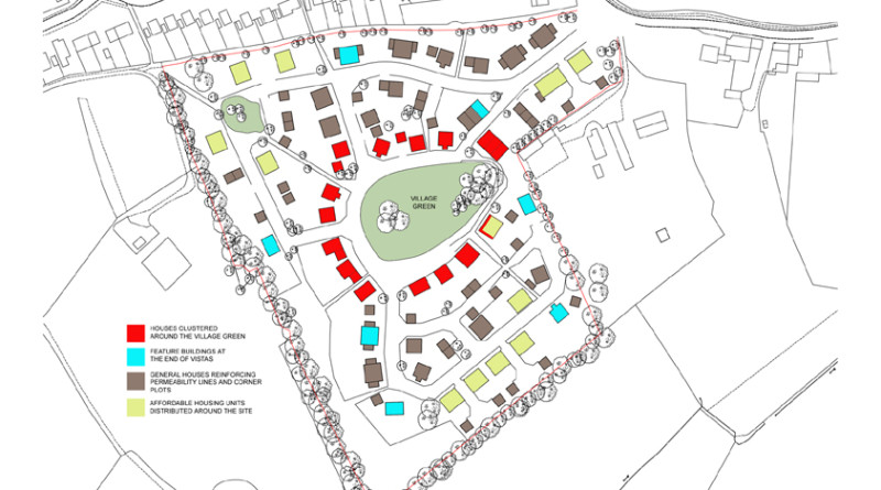
Larger houses are clustered around the green, facing onto it, with smaller houses evenly distributed around the site together with affordable homes.
Key feature buildings are set up at the end of the long views to act as ‘full stops’ and to maintain the village perimeters.
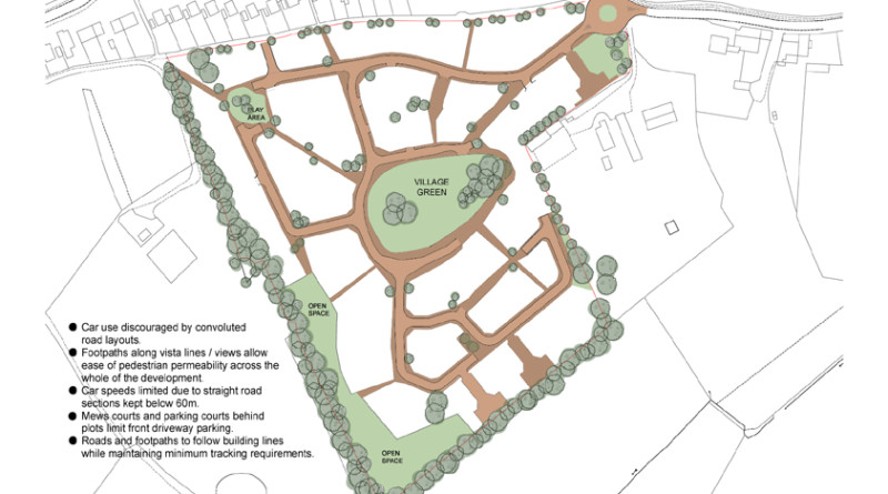
Road layouts are deliberately convoluted with straight sections kept to a maximum of 60m to maintain speeds below 30mph. Mews areas and rear parking courts also take the emphasis away from front garden parking areas. Road and footpaths follow the building lines, while meeting the requirements of vehicle tracking, ensuring that the spaces created relate to the buildings and not the needs of the motor car.
A landscaped buffer is kept to the south-west Greenbelt land beyond and the existing mature planting to the boundary is also maintained.
Pedestrian links to the rest of the existing village are introduced to ensure that the new development is integrated with the current community.






