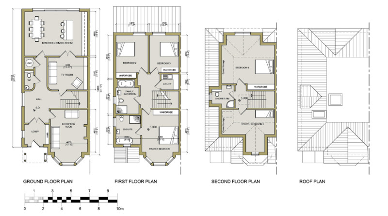
New Housing, Esher, Surrey
Feasibility Designs carried out for Zero6 Developments for eight new large semi-detached ‘Victorian’ houses for a site in Esher, Surrey following the demolition of three existing houses.
The brief required that the houses were designed to reflect the predominantly ‘Victorian’ style of existing houses around the site using selected stonework and brickwork detailing, terracotta feature panels and decorative timber detailing to the eaves, gables and porches.







