Reading Road South, Church Crookham
“They did an amazing job. We are so pleased with the house, it’s a wonderful building to live in. We are having fun looking for new furniture for it.”
Owners of the first of these developer marketed homes
Granted Permission by the Planning Inspectorate in August 2008 following an appeal against Hart District Council it was noted by the Planning Inspector in his report that “the innovative designs proposed would enliven an otherwise unremarkable line of dwellings.” The houses were constructed by local developer Econvery.
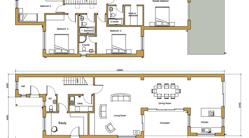
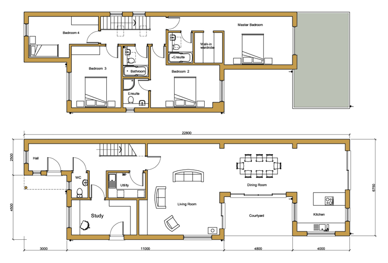
The design and siting of the houses respond to the long, thin nature of the site. The houses are set back from the road and screened using dense new planting to provide both visual and acoustic screening from the main road and due to the linear nature of the site daylighting into the houses was focused at the ends of the buildings thus avoiding overlooking issues to the adjoining properties. A re-entrant courtyard along the side elevation allows natural light to be brought into the centre of the house and forms a natural secluded space off the main living spaces while still allowing views from the living room out to the rear gardens through the kitchen space on the other side of the courtyard via the large glazed openings.
The external finish materials include white self-coloured render and timber cladding and were selected as they are common to the area while also complementing the contemporary design. The position of the timber cladding in relation to the render has been designed to emphasise the re-entrant corners at the front and rear of the houses while also breaking down the long side elevations into smaller visual components.
The single storey rear extensions have been completed with an “extensive green roof”. This type of roof is planted with tough, drought-proof, evergreen, low-growing and low-maintenance plants such as sedums. Such roofs are not intended to be accessed and used a roof-terraces, rather they are seen as helping to preserve the natural landscape and bio-diversity on the site and helping to absorb water in times of heavy rainfall, while also contributing greatly to the insulation of the building.
The Planning Authority cited “overshadowing” as a reason for their initial refusal. BWP Architects produced a series of sun-path analysis drawings which the Inspector referred to in his report, stating “the modelled shadow diagrams show that the proposal would have little impact on the amount of sunlight reaching the gardens or windows of the adjoining neighbours.” Without these, the decision to overturn the planners refusal may have been different.









