Skip to content
Thursday, April 9, 2026
Latest:
  • quickSAP in Architecture Vogue Magazine
  • New gently curving contemporary private home next to the Surrey Hills National Landscape
  • New Build SIPs Panel Home in Hampshire
  • Planning Permission for new Georgian style villa in Oxshott
  • Sneak peak at recently completed new home

BWP ARCHITECTS

Award Winning Architects Establised 2003

BWP ARCHITECTS
BWP ARCHITECTS

  • Home
  • Services
    • Site Appraisal & Feasibility
    • Building Plots
    • Outline Designs
    • Planning Applications
    • Construction
    • Developers
    • Sustainability
    • Master Planning
    • Party Wall Notices
    • Sketchup Extension for SAP & EPC
  • Projects
    • Residential New Build
    • Contemporary New Homes
    • Traditional Design
    • Timberframe Homes
    • SIPs Panel Builds
    • ICF Builds
    • Remodelling
    • Developers
    • Master Planning
    • Feasibility
  • Gallery
  • About
    • Leigh Brooks MVO RIBA
    • Jane Brooks BA Arch
    • BWP Architects
    • Design Awards
    • Testimonials
    • PI Insurance
    • GDPR Information – Privacy Notice
    • Links
    • Careers
  • Blog
  • Contact
  • quickSAP
BWP ArchitectsNewsPlanningTraditional

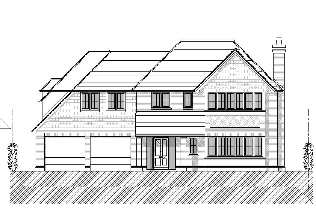
Planning Submitted to London Borough of Bromley for new Replacement 4000sqft Dwelling

May 18, 2015 BWP Architects 2023 Views BWP Architects,  Planning Permission,  Tkei Homes

 

CHEplanningelev

 

  • Siberian Larch cladding going up on Farnham Passivhaus
  • Works start on site for new timber frame lodge at Bosham Hoe, East Sussex

Contact Details

5, Borelli Yard, Farnham
Surrey GU9 7NU

e: studio1@bwp.archi

t: 01252 821114

Practice Brochure

Click here to download a copy of the latest Practice Brochure

Recent Posts

  • quickSAP in Architecture Vogue Magazine
  • New gently curving contemporary private home next to the Surrey Hills National Landscape
  • New Build SIPs Panel Home in Hampshire
  • Planning Permission for new Georgian style villa in Oxshott
  • Sneak peak at recently completed new home

Latest Facebook Post

BWP Architects

3 weeks ago

BWP Architects
That Friday feeling… another great day on the hill!#BPW #bikeparkwales ... See MoreSee Less

Photo

View on Facebook
· Share

Share on Facebook Share on Twitter Share on Linked In Share by Email

BWP Architects

3 weeks ago

BWP Architects
Architects and designers - do you work on new build or extensions for dwellings?Do you use Sketchup for your design work?Do you want to know about the potential energy efficiency of your early designs without having to engage SAP assessors too early?Do you want to test different construction options and see what impact they will have on SAP and EPC before deciding on what approach to take? Do you want to be able to advise clients properly using actual calculated data?Do you need detailed carbon emission calculations for planning application Energy Statements?Do you want to be able to do all this at the push of a button directly in Sketchup?Take a look at quickSAP - the home energy modelling plugin that was created by architects to test early design concepts.14 day free trials available through Sketchup Extension Warehouse or direct via the website.Annual subscriptions will include the free update to SAP10.3 based calculations when published.www.quickSAP.com #quicksap#SAP#EPC#hem#energyefficiency#energystatements#planningpermission#homeenergymodelling#carbonemissions #carbonemissions #carbonemissionsreduction ... See MoreSee Less

Photo

View on Facebook
· Share

Share on Facebook Share on Twitter Share on Linked In Share by Email

BWP Architects Ltd
5, Borelli Yard
Farnham Surrey GU9 7NU
Contact: Leigh Brooks MVO
t: 01252 821114
e: studio1@bwp.archi

Latest Project News:

BWP ArchitectsNewsProjectsSustainability

quickSAP in Architecture Vogue Magazine

February 10, 2026 BWP Architects
New gently curving contemporary private home next to the Surrey Hills National Landscape
Contemporary New HomesProjectsResidential New Build

New gently curving contemporary private home next to the Surrey Hills National Landscape

July 15, 2024 BWP Architects

For BWP Architects articles click here

Copyright © BWP Architects Ltd 2011-2026. All rights reserved.