New House, Twickenham
Sir Peter Wakefield’s family had been trying to obtain planning permission for a new house on a plot of land to the rear of their home for some 20 years and in 2002 the project passed to one of Sir Peter’s sons who approached Leigh Brooks after a recommendation by another of his clients.
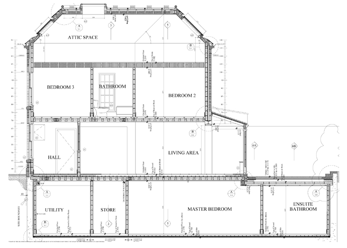
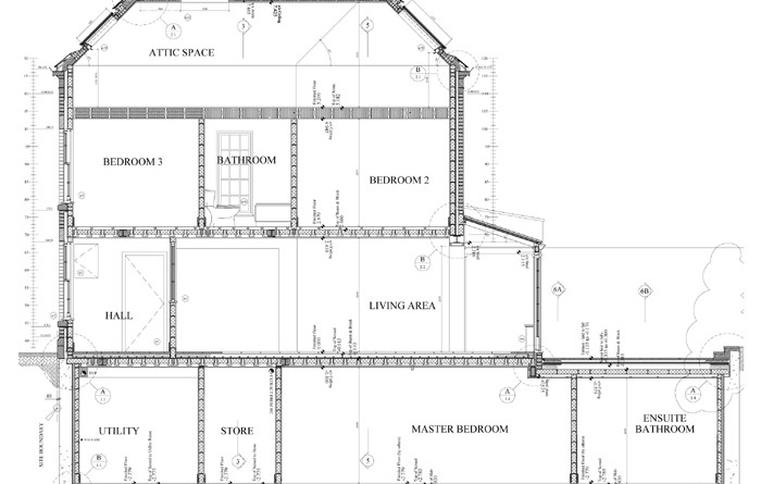
Following an initial design period of some nine months and numerous consultations with the local planning authority consent was finally obtained for a new four storey ‘Georgian’ style town house.
To maximise the potential of the site the house occupies a basement which covers the entire site and contains the master bedroom suite and ancillary accommodation. This provided the main contractors with a logistical nightmare due to the extremely narrow approach to the site and the lack of any working space around the site – the solution was to form the basement in three stages, backfilling the earth into the previously formed basement sections to allow the mechanical digger to move around site to form the next section of basement and then finally digging it all out again into waiting lorries on turn-around once the whole basement had been formed (and backfilled). The fourth floor is contained within the roof structure itself – steel framed to ensure that a single open space is achieved.
To the rear a courtyard terrace is built over the master bedroom ensuite with a stone staircase leading down to a lightwell to the rear of the property. This lightwell, glazed on three sides with opening French windows, throw light into both the master bedroom and the ensuite bathroom while maintaining privacy.
To ensure attention to historic detailing the sliding sash windows, conservatory with finely detailed lambs tongue mouldings, a hand carved and bracketed door canopy and front door itself are all bespoke for this project with joiners working from full size working drawings provided by the architects.
London Stock bricks with stone detailing and natural slate roofing complete the elevations.
The project was completed in December 2006 for a construction cost of around £450,000.







