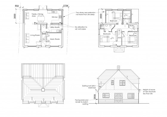
Lawful Development Certificate granted by Waverley Borough Council for Two Storey Rear Extension in Farnham

Waverley Borough Council have granted a Lawful Development Certificate for a two storey rear extension for a client in Farnham. The client approached us after two previous planning applications for a two storey rear extension by another architect were refused. The client had reluctantly decided that they could no longer pursue the two storey option and asked us initially to look at a single storey design only – when we pointed out what could be acheived under Permitted Development Rights, avoiding the need for a full planning application and the possibility of a third refusal, they were amazed and instructed us to proceed accordingly.
The key to all things is a full understanding of the subtleties of both the local planning policies and the national Permitted Development Rights.
