Paragraph 55 buried Eco-home, Frensham, Surrey
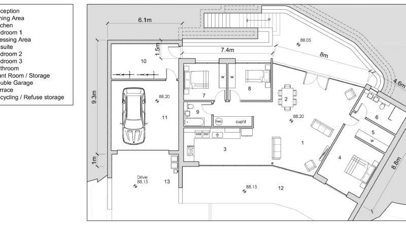
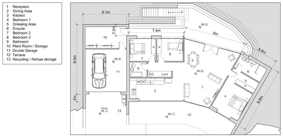
Positioned on the north slope of a bowled site outside the village of Frensham, Surrey this house was submitted for planning permission under the Paragraph 55 exemptions for “exceptional quality and innovative” designs.
The house is buried within the existing slope but has been designed to avoid the commonplace problems associated with sub-terranean properties by incorporating daylight and ventilation in to the ‘dark’ side through the creation of a large lightwell with access. This allows the creation of a double-sided property, through ventilation and light from both front and rear.
The property also features many innovative environmental features and ecological benefits to the site. The existing lake is to be cleared of fish and a ‘newt-friendly’ habitat created while also using water-source heat pumps to generate heating for the home. All black PV panels on the roof are supplemented with the latest photovoltaic technology in the form of paving slabs on the rear terrace and driveway. Unused electricity from summer is stored in large domestic battery systems for use in winter months and to power the families electric car (via a bi-directional charging station which also allows the car to transfer any surplus electricity in to the domestic battery stores).
Further ecology enhancements around the site include the removal of the leylandii pine hedge to be replaced with native hedgerow species and the planting of a new apple orchard of rare local species.











