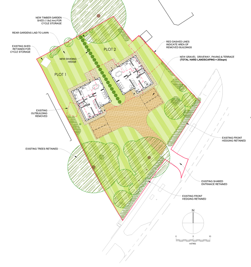
Two New 1,350sqft Detached Cottages for Developer Client in Surrey
This pair of newly completed 125sqm detached cottages were designed to replace an existing dormer cottage bungalow within the Green Belt of Ripley Village in Surrey. The original house had been previously split front and back to create a pair of independent dwellings and a Lawful Development Certificate was sought to legalise the standpoint of two existing dwellings on the plot.
A Lawful Development Certificate was then sought to demonstrate realistic fall-back positions to extend the existing building before a fresh planning application was prepared and submitted for the new replacement homes.
Each home has approximately 125sqm of floor space including three double bedrooms, two bathrooms, an open plan kitchen / diner with two further reception room spaces and a utility room. Careful design planning from the outset ensured efficient and maximum use of the rooms to the first floor. Generous driveways and landscaped gardens wrap the pair of detached homes with large areas laid to lawn.









