Timberframe Pavilion Home, Fleet, Hampshire
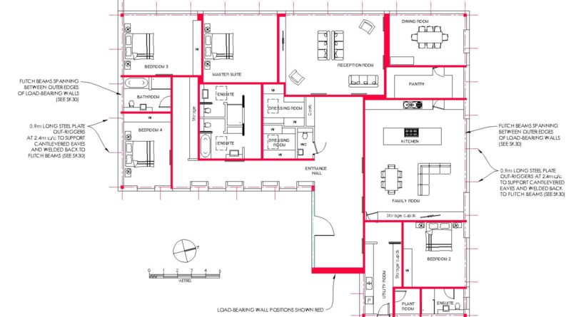
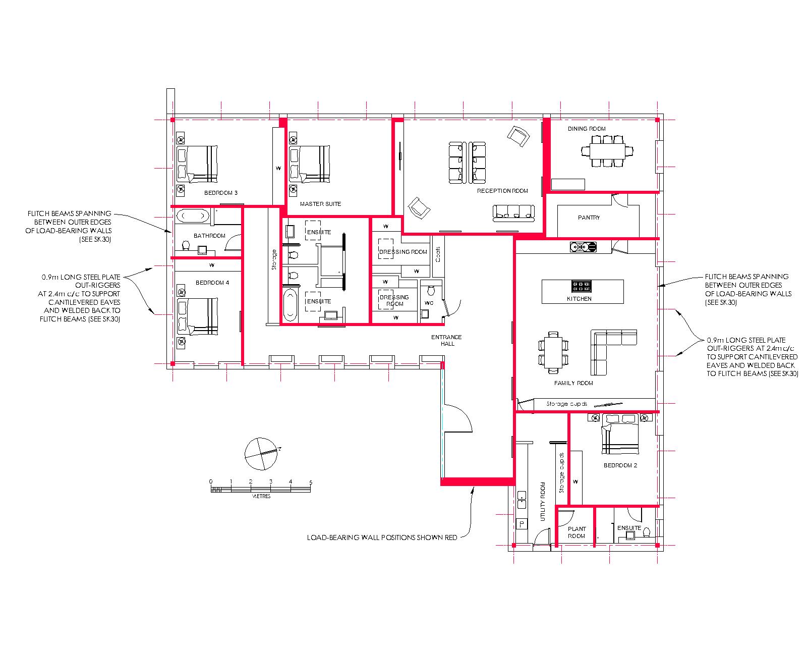
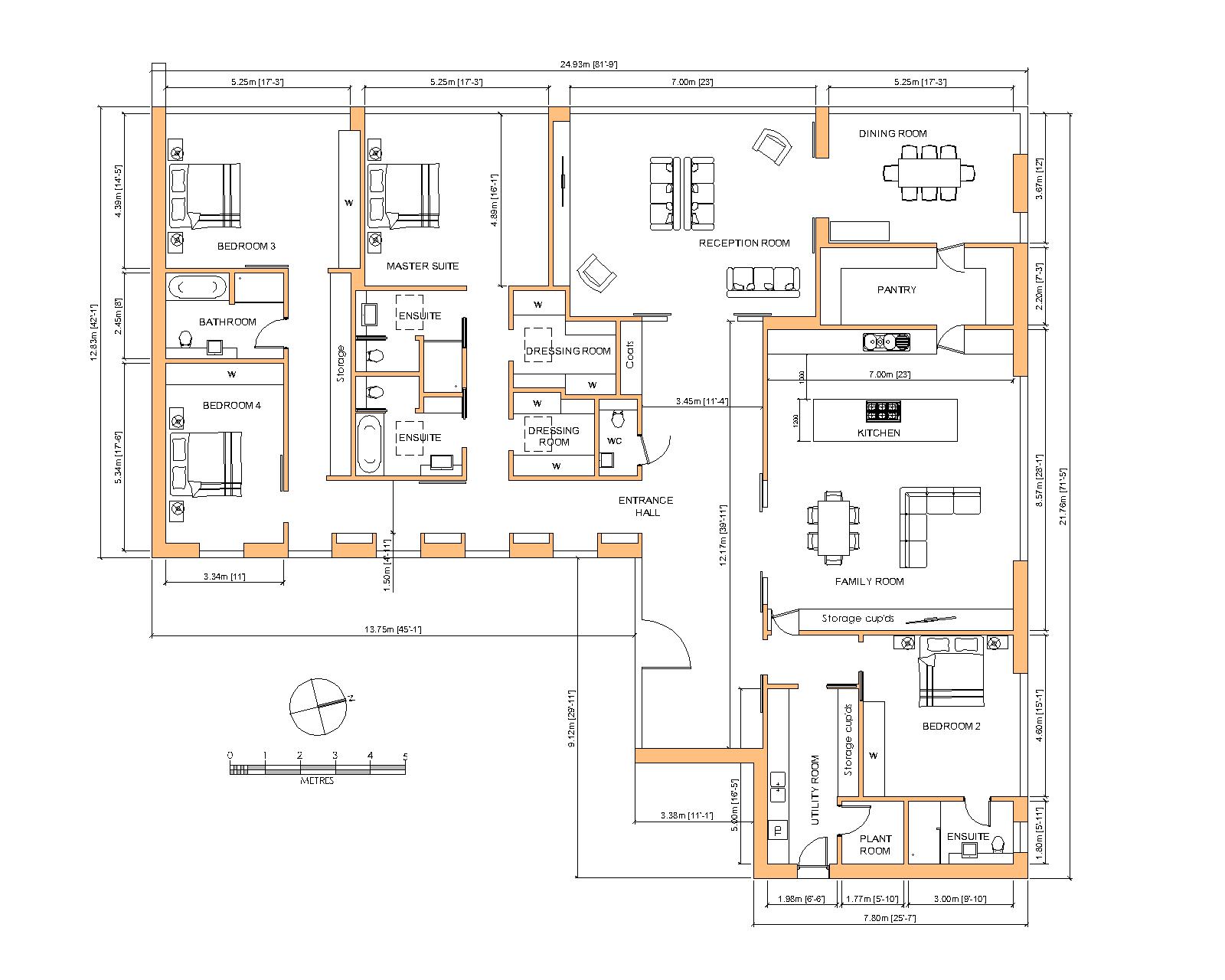
Replacing an existing bungalow within a secluded site in a Conservation Area, this Pavilion scheme for a private client has no load-bearing external walls.
A ribbon of glazing runs the entire perimeter of the building at eaves levels giving the appearance of a shallow floating roof projecting beyond the external walls to provide shelter and passive solar control of excessive summer gains. Internally, the structure supports the roof with a concealed ring of flitch beams at the eaves supporting steel fins.
Due to the topography of the site, the garden elevations appear to sit on a deep stone plinth or base further enhancing the pavilion aesthetic. At night, the glazed ribbon comes alive as light projects out and is reflected off the soffit of the overhanging roof. All white interiors, white windows and self-coloured white external render complete the minimalist look. The shallow pitched standing seam zinc roof behind is hidden from views due the site levels and the projecting eaves to give the appearance of a simple thin slab roof.









