Full Remodelling and Extension Works, Conservation Area, Hampshire
The complete remodelling of an existing home in a Conservation Area in Hampshire including new contemporary extensions, garden building and underground garage.
Read MoreThe complete remodelling of an existing home in a Conservation Area in Hampshire including new contemporary extensions, garden building and underground garage.
Read MoreReplacing an existing bungalow within a secluded site in a Conservation Area, this Pavilion scheme for a private client has
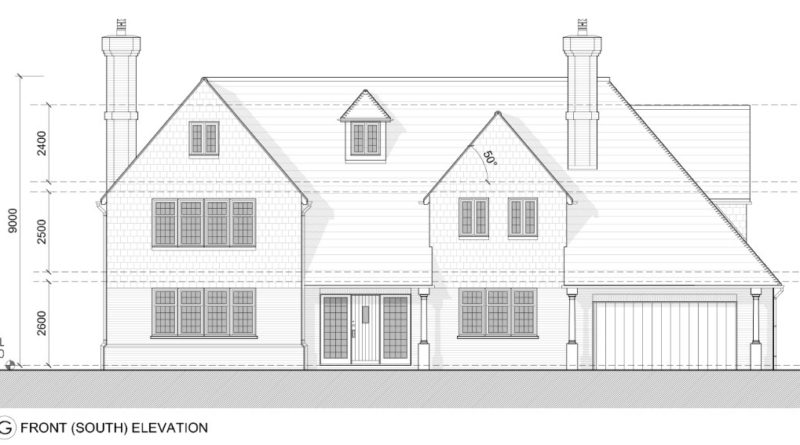
Read MorePlanning permission granted this week by Reigate & Banstead Borough Council for the construction of a new 4,000sqft detached house
Read MoreThe Planning Committee at the London Borough of Bromley last night approved Planning Permission for a two large new detached
Read MorePlanning Permission has been granted for this ‘orangery’ style extension in Boroughbridge, North Yorkshire. The design creates a more contemporary kitchen/dining/family room
Read MorePlanning Permssion has recently been granted for a substantial garden room extension in Harrogate. The design provides a contemporary kitchen
Read MorePlanning permission has been granted for this full width Kitchen extension to a semi-detached property in the Leeds Road Conservation
Read MorePlanning Permission has been granted for this garden room extension to a substantial house in the South Stray Conservation Area.
Read MoreA Planning Application has been submitted for a new ‘orangery’ style kitchen extension to this substantial property in Boroughbridge. The
Read More