Listed Cottage, Harrogate, North Yorkshire
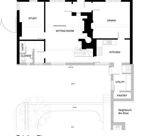
Wingate Cottage is a Grade II Listed property in the Great Ouseburn Conservation Area. The existing kitchen was cramped and compromised by three doorways. An existing single-storey extension contained a utility room, boiler and pantry but blocked views of the garden.
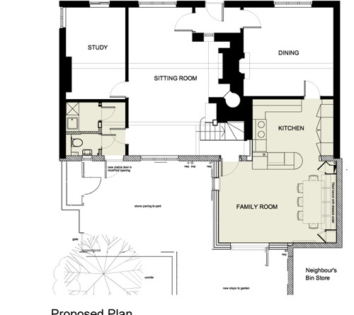
The Utility Room was relocated to an under-utilised storage area and a new back door was added to provide access to the garden. The existing cloakroom was modified to suit the new layout.
A new single-storey extension was added with complimentary materials and detailing. Four new steel beams were inserted to create a large open-plan space. One of the existing doorways was turned into a bookcase allowing a new efficient U-shaped kitchen to be installed with a larger four oven Aga. Bespoke oak cabinets were manufactured by Chapel Kitchens of Nun Monkton along with a matching bench and dining table. Two ‘conservation’ rooflights ensure natural light fills the new garden room. An oak sliding/folding door was manufactured to match the existing windows and provide level access to the redesigned garden.
The project was completed in Summer 2010.







