New 6,500sqft house, Kingswood, Surrey
The design itself has been constructed using the best principals of traditional Georgian architecture; rhythm, proportion, scale. Both the plan and the elevations are designed using a formal geometric grid of 3m x 3m and set around strict symmetry lines.
The main central symmetrical part of the house is differentiated from the garage block to the side by both position and material. The central main block of the house is in brick and raised up on a stone plinth; the garage block to the side is in stucco and is set both onto the floor and back from the main building line face. The subservience of this block is further reinforced by the lowering of the eaves and roof.
The main entrance is placed centrally on the main block and is treated with a traditional pediment and balcony arrangement. This differentiation is maintained on the rear elevation and the interjection of a central rear projecting bay and side bay in contrasting stucco render enhance the visual appearance of the main brick house.
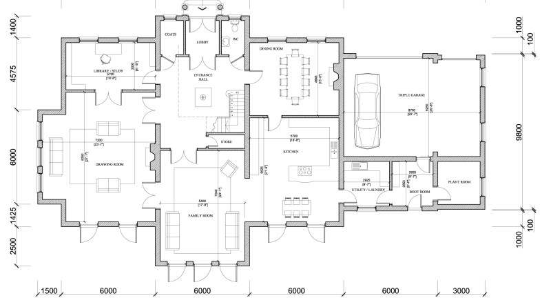
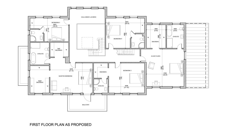
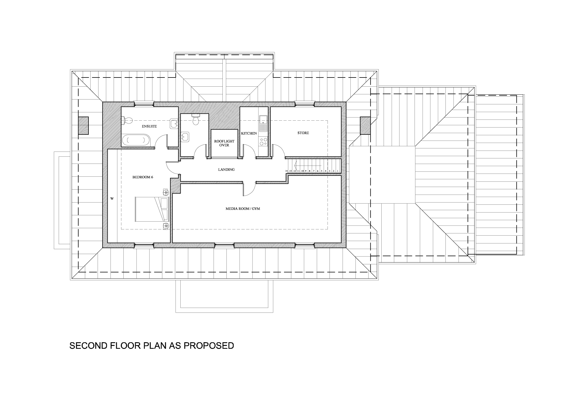
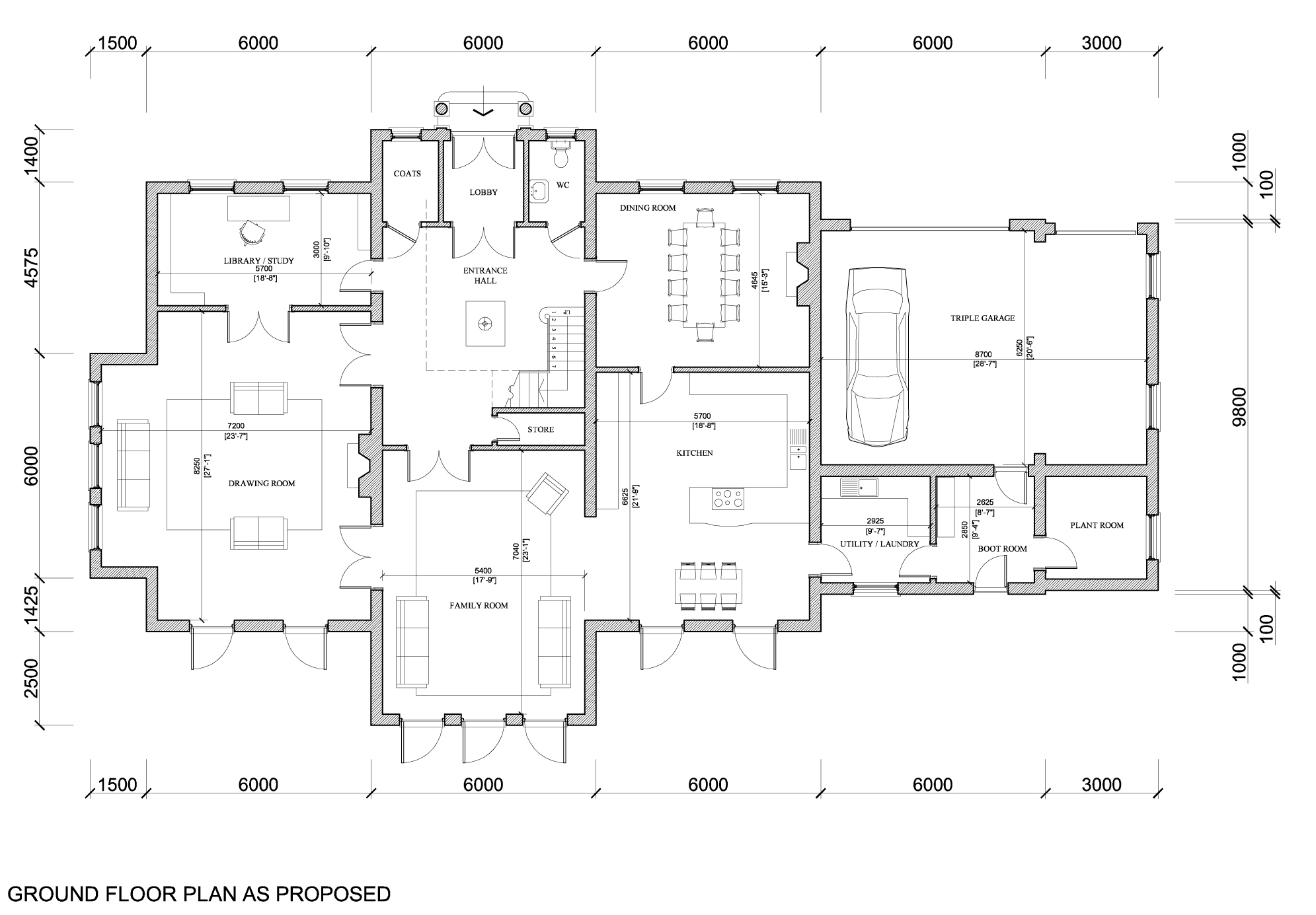
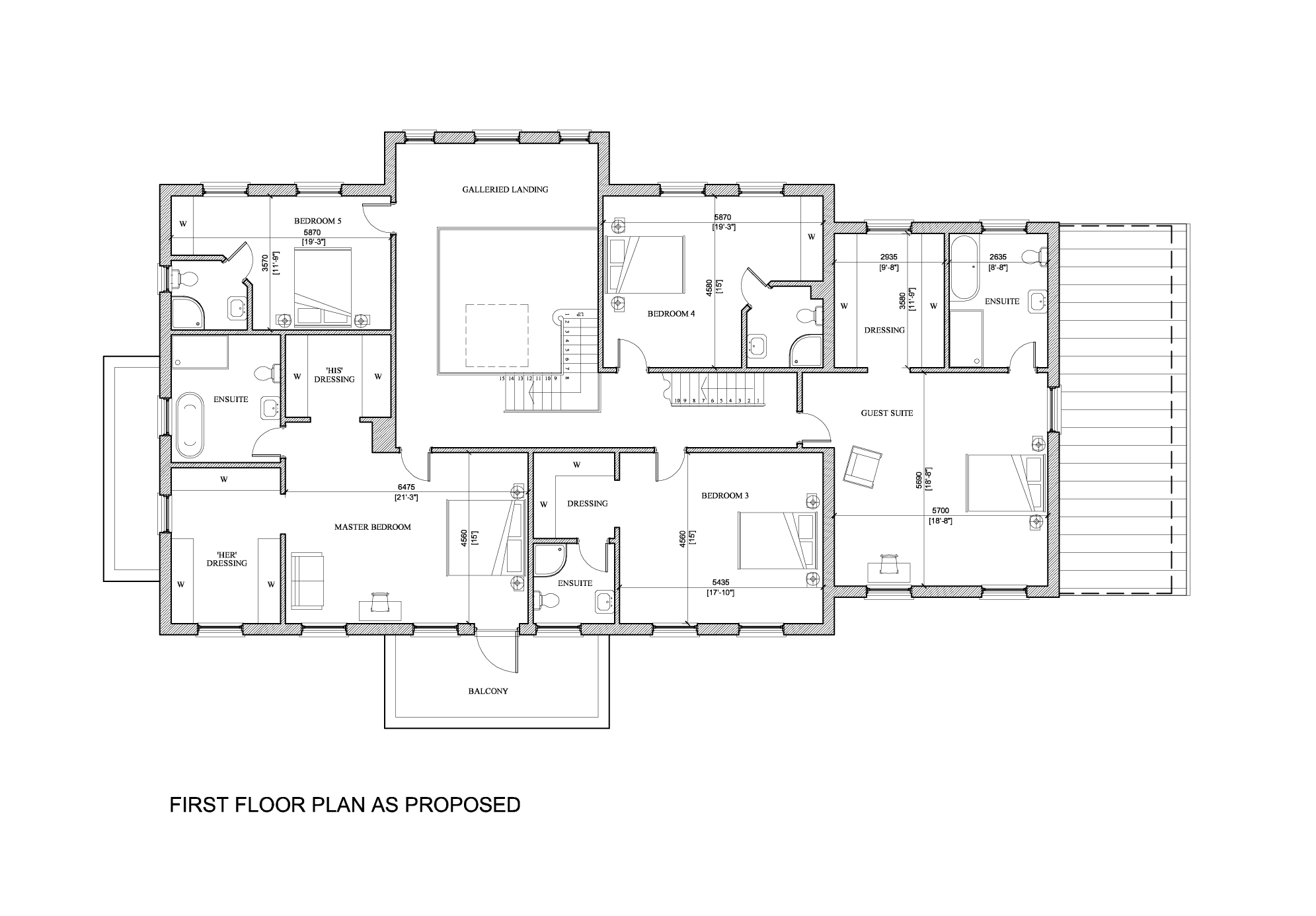
Overall the footprint of the house is 16.3m in depth by 28.3m in width including the single storey bay projections to the front, rear and sides. The main two storey part of the house is significantly smaller at 12m x 24m. A large attic storey adds more accommodation including an au-pair suite, home cinema and games room.
The overall GIA of the new house is a significant improvement on the existing house, achieved by a rationalisation of the plan, and provides 611sqm (6,575 sqft) of internal accommodation (exc. garage).
Overall the architectural style of a simple Georgian country house is typical of many of the houses on the Estate and as such this design respects and is compatible with the character of the area as required by local planning policy.
The design and siting of the new house allowed the existing perimeter planting to remain and also maintain the visual predominance of tree cover and spacious gardens.















